Scala per piscina Accesso a 6 gradini
- Scala per piscina 6 gradini
- Realizzata in acciaio inox. AISI-316 e gradini in materiale plastico antiscivolo
- Adatta a persone con mobilità ridotta, anziani, ecc.
- Accesso facile e confortevole alla piscina
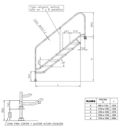
- Con una larghezza di 500 mm tra i corrimano
- Facile da installare, progettato per il collegamento alle prese equipotenziali
Tecnica caratteristiche
Scala Astralpool 00118
Scaletta per piscina Accesso 6 gradini appositamente studiata per le piscine di riabilitazione o per le terapie in acqua per le persone che non necessitano di sollevatori.
Larghezza 500 mm tra i due corrimano.
Regolabile in altezza. Facile da installare. Realizzata in tubo di acciaio inox AISI-316 lucidato Ø 43 mm. Pioli in plastica con superficie antiscivolo.
Fornito con ancoraggio di fissaggio, previsto per il collegamento alla presa equipotenziale.
Consente alle persone con mobilità ridotta, agli anziani... di accedere comodamente alla piscina. Consente una maggiore autonomia con conseguente soddisfazione personale.
Potente Anche come
Ultimo Prodotti visualizzati
Filtro di ricambio Astralpool Coperchio trasparente + anello e guarnizione



